Характеристики
Серия подстанции
—
БКТП (бетонная)
Мощность подстанции, кВА
—
160
Напряжение ВН подстанции, кВ
—
10
Исполнение ввода ВН
—
кабельный
Исполнение ввода НН
—
кабельный
Исполнение РУВН
—
проходная
Все характеристики
Нашли дешевле?
Наличие уточняйте у наших менеджеров
Характеристики
Серия подстанции
БКТП (бетонная)
Мощность подстанции, кВА
160
Напряжение ВН подстанции, кВ
10
Исполнение ввода ВН
кабельный
Исполнение ввода НН
кабельный
Исполнение РУВН
проходная
Тип коммутационного аппарата на отх. линиях
рубильники
Колличество отх. линий
4
Тип ячеек на стороне ВН
RM-6
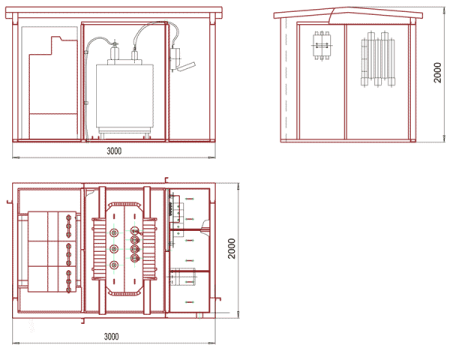
Габаритные размеры ДхШхВ, мм
надземная часть 3000x2000x2000, подземная часть 3000x2000x1700
Масса, кг
надземная часть 16 500, подземная часть 11 200
Вам также может понравиться
