Характеристики
Серия подстанции
—
БКТП (бетонная)
Мощность подстанции, кВА
—
160
Напряжение ВН подстанции, кВ
—
10
Исполнение ввода ВН
—
кабельный
Исполнение ввода НН
—
кабельный
Исполнение РУВН
—
проходная
Все характеристики
Нашли дешевле?
Наличие уточняйте у наших менеджеров
Характеристики
Серия подстанции
БКТП (бетонная)
Мощность подстанции, кВА
160
Напряжение ВН подстанции, кВ
10
Исполнение ввода ВН
кабельный
Исполнение ввода НН
кабельный
Исполнение РУВН
проходная
Тип коммутационного аппарата на стороне ВН
ВНА выключатель нагрузки
Тип коммутационного аппарата на отх. линиях
рубильники
Колличество отх. линий
4
Тип ячеек на стороне ВН
КСО-308
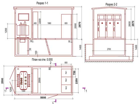
Габаритные размеры ДхШхВ, мм
надземная часть 5000x2500x2870, подземная часть 5000x2500x1400
Масса, кг
надземная часть 14 500, подземная часть 8 800
Вам также может понравиться
